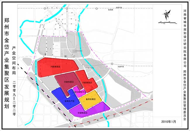
郑州市金岱产业集聚区位于郑州市东南部,规划范围总面积11.42平方公里。主导产业为汽配商贸物流、家具制造、彩色印刷与包装业。发展定位为:我国中西部地区最大的汽配商贸物流中心,郑州东南经济板块的先进制造业基地。产业空间布局为“一心、三区”的总体格局。
总院首页
关于企业
新闻动态
创新研发
职业生涯
经典项目
联系我们